Ekskluzywne nowe wille na sprzedaż w Las Farolas, Mijas Costa
ID: 641-118-10-115REF: N9260
Opis
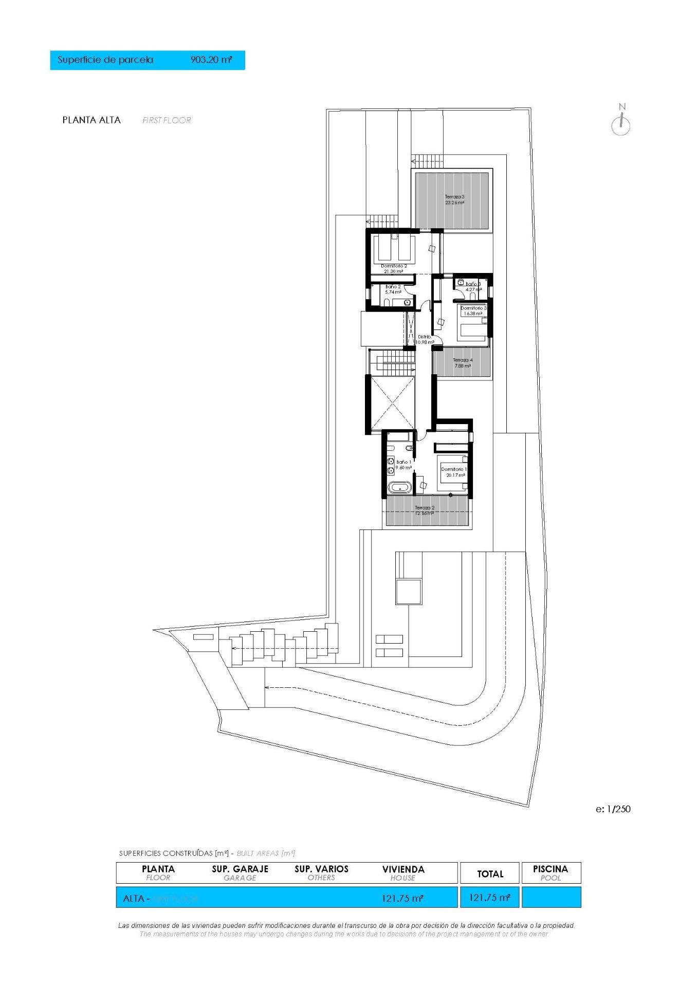
Ekskluzywne nowe wille na sprzedaż w Las Farolas, Mijas Costa Doskonała lokalizacja nad morzem na Costa del Sol Odkryj nową inwestycję obejmującą 7 luksusowych willi położonych w prestiżowej i dobrze znanej urbanizacji Las Farolas, pomiędzy Fuengirolą a La Cala de Mijas. Zaledwie 100 metrów od plaży, te wyjątkowe domy oferują częściowy widok na morze i góry oraz łatwy dostęp bezpośrednio z nadmorskiej drogi N-340 (A7). Okolica znana jest ze spokoju, bliskości Morza Śródziemnego i doskonałych połączeń z Malagą, Marbellą i lotniskiem. Elegancki design i najwyższa jakość wykonania Projekt, zrealizowany przez dewelopera z bogatym doświadczeniem na Costa del Sol, odzwierciedla najwyższe standardy jakości, bezpieczeństwa i nowoczesnego designu. Każda willa łączy w sobie śródziemnomorski urok z nowoczesną architekturą, oferując jasną, funkcjonalną i elegancką przestrzeń mieszkalną. Przestronny układ na trzech poziomach Każda willa ma trzy piętra, oferując przestronne wnętrza i przestrzenie zewnętrzne: Piwnica: garaż na dwa samochody, pomieszczenia techniczne, schowek, dodatkowa sypialnia z łazienką oraz pomieszczenia wielofunkcyjne idealne na siłownię, kino domowe lub pokój gier. Parter: duży salon i jadalnia z kuchnią, pralnia, toaleta dla gości i jedna sypialnia z łazienką. Salon otwiera się na rozległy taras z prywatnym basenem i ogrodem. Piętro: dodatkowe sypialnie, w tym apartament główny z wolnostojącą wanną i dostępem do prywatnych tarasów, niektóre z widokiem na morze. Luksusowe wykończenia i nowoczesny komfort Każda willa jest wyposażona w najwyższej jakości materiały i najnowsze technologie, w tym: W pełni wyposażone urządzenia kuchenne marki Bosch Zasłony z napędem elektrycznym we wszystkich sypialniach Ogrzewanie podłogowe za pomocą systemu aerotermicznego i klimatyzacja kanałowa. Inteligentna automatyka domowa do sterowania roletami, oświetleniem i klimatyzacją Ogrody krajobrazowe z automatycznym systemem nawadniania Odległości do głównych punktów zainteresowania: Plaża: 100 m La Cala de Mijas: 3 km Centrum Fuengirola: 6 km Marbella: 22 km Międzynarodowe lotnisko w Maladze: 30 km Najbliższe pole golfowe (Chaparral Golf): 2 km Centrum Malagi: 40 km Komfortowy i prestiżowy styl życia Wille w Las Farolas oferują niezrównane połączenie prywatności, luksusu i bliskości morza, dzięki czemu idealnie nadają się na stałe miejsce zamieszkania, dom wakacyjny lub inwestycję na Costa del Sol. Skontaktuj się z nami już dziś, aby umówić się na oglądanie i odkryć swoją wymarzoną willę w Mijas Costa.
Powierzchnia:
Klasa energetyczna:
Udogodnienia
Garden
Gated
Terrace: 147 Msq.
Space
Number of Parking Spaces: 2
Beach: 100 Meters
Near Golf / Golf Resort Property
Views: Sea
Near Schools
Near Commercial Center
Location: Coastal
Useable Build Space: 393 Msq.
Storage / Trastero
Under-Build / Basement
Lokalizacja
Odległość od plaży: 100m



































