Projekt Pakoštane
REF: HR/PAKO/1Opis
NOWE BUDOWNICTWO – PAKOŠTANE
Prezentujemy nowy projekt nowoczesnego budynku mieszkalnego z 4 apartamentami, położonego w spokojnej części Pakoštane, idealnego do zamieszkania lub turystyki.
Dzięki różnorodnym planom każdy znajdzie mieszkanie dla siebie, o odpowiednim układzie.
DOSTĘPNE APARTAMENTY
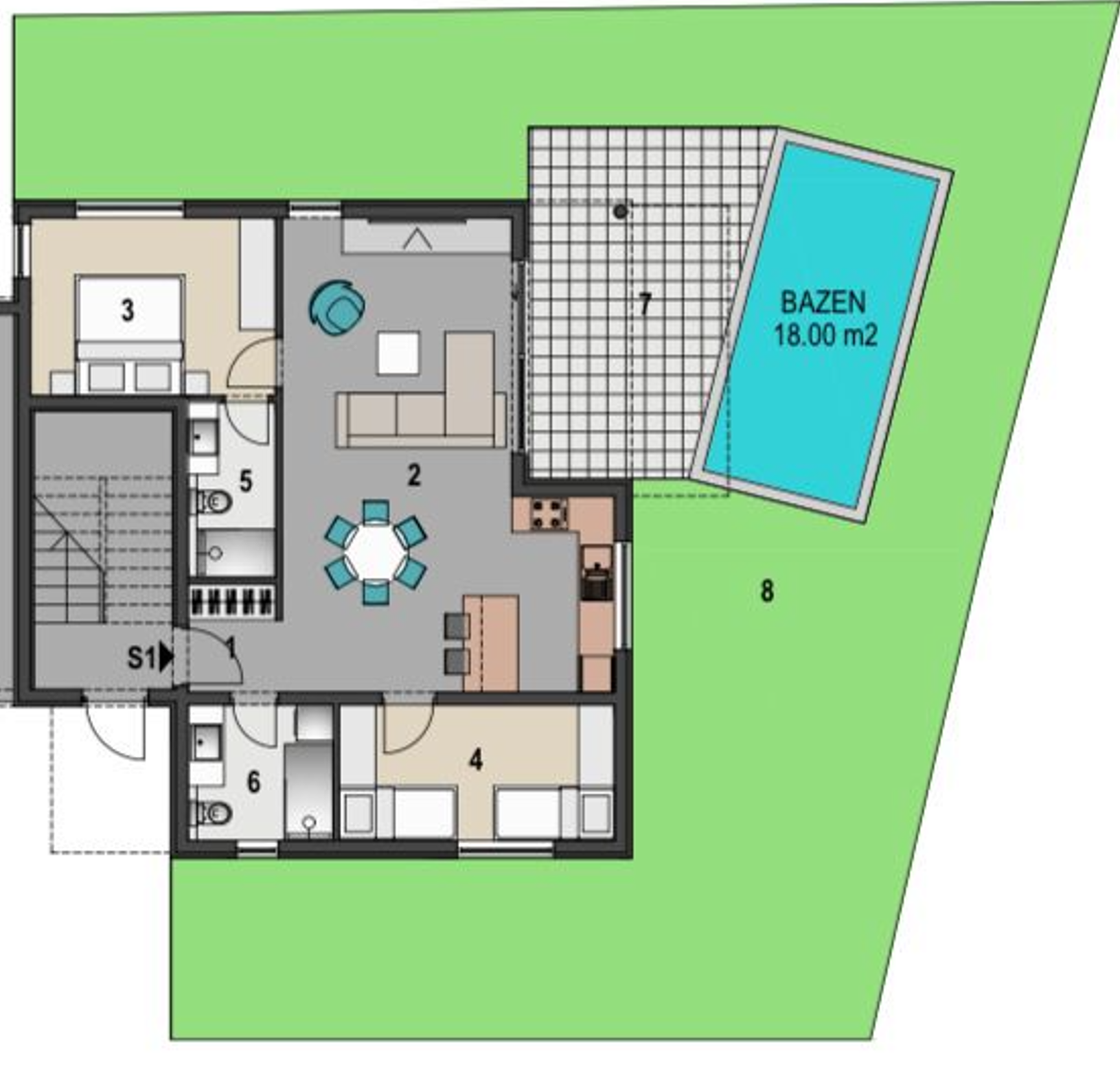
S1 – ROZKLAD:
– hol wejściowy z garderobą – 2,70m2
– sypialnia z możliwością 2 osobnych łóżek – 10,20m2
– wspólna łazienka – 5,30m2
– sypialnia główna z łóżkiem małżeńskim i osobną łazienką – 11,90m2 + 4,00m2
– salon z kuchnią i jadalnią – 35,30m2
– z salonu wyjście na taras i duży ogród z basenem (126,00m2)
– taras – 19,60m2
S3 – ROZKLAD:
Rozkład mieszkania:
1 piętro:
– hol wejściowy z garderobą – 4,10 m2
– wspólna łazienka – 5,00 m2
– salon z kuchnią i jadalnią – 35,80 m2
– balkon – 8,80 m2
– klatka schodowa – 7,40 m2
2 piętro:
– korytarz + schody – 10,90 m2
– wspólna łazienka – 4,40 m2
– sypialnia z łóżkami dla dzieci – 10,20 m2
– sypialnia z łóżkiem małżeńskim i wyjściem na własny balkon – 10,60 m2 + balkon 8,80 m2
– sypialnia z łóżkiem małżeńskim i prywatną łazienką – 12,70 m2 + łazienka 4,30 m2
3 pietro – taras dachowy – 48m2
S3 – ROZKLAD:
1 piętro:
– hol wejściowy z garderobą – 4,10 m2
– wspólna łazienka – 5,00 m2
– salon z kuchnią i jadalnią – 35,80 m2
– balkon – 8,80 m2
– klatka schodowa – 7,40 m2
2 piętro:
– korytarz + schody – 10,90 m2
– wspólna łazienka – 4,40 m2
– sypialnia z łóżkami dla dzieci – 10,20 m2
– sypialnia z łóżkiem małżeńskim i wyjściem na własny balkon – 10,60 m2 + balkon 8,80 m2
– sypialnia z łóżkiem małżeńskim i prywatną łazienką – 12,70 m2 + łazienka 4,30 m2
S4 – ROZKLAD:
2 piętro:
– przedpokój z miejscem na garderobę – 6,30 m2
– sypialnia mala – 7,10 m2
– wspólna łazienka – 4,70 m2
– sypialnia główna z łóżkiem małżeńskim – 9,90 m2
– salon z kuchnią i jadalnią – 23,90m2
– taras 1 – 9,40 m2
– taras 2 – 13,70 m2
– taras na dachu – 55,50 m2
SPECYFIKACJE I WYPOSAŻENIE
Ogrzewanie podłogowe w łazienkach (z możliwością montażu w całym apartamencie po uzgodnieniu i cenie)
Elektryczne rolety w całym apartamencie
Klimatyzacja we wszystkich pomieszczeniach – Midea
Stolarka PCV w kolorze antracytowym
Stolarka Rehau Synego 85 – szkło izolacyjne trójwarstwowe
Wielkormatowe płytki ceramiczne klasy 1 – importowane z Włoch
Parkiet na życzenie klienta
PARKING
Miejsce parkingowe zewnętrzne: 7500 €
Miejsce parkingowe w garażu: 15000 €
*Apartament S3 obejmuje zarówno miejsca parkingowe zewnętrzne, jak i garażowe w cenie!
Rozpoczęcie budowy: jesień 2025
Zakończenie: do końca 2026
Lokalizacja: Spokojna ulica w centrum Pakoštane, 450 m od morza i promenady, blisko wszystkich udogodnień.
Idealny dla rodziny, na wakacje lub inwestycję!
DODATKOWE ZALETY I ATUTY
– Mały budynek mieszkalny – tylko 4 apartamenty: spokój, prywatność i poczucie ekskluzywności
– Jasne, przestronne przestrzenie z dużą ilością naturalnego światła
– Nowoczesna architektura i wysokiej jakości konstrukcja z dbałością o każdy szczegół
– Możliwość personalizacji wnętrza – parkiet, kolorystyka, dekoracja według życzenia kupującego w trakcie budowy
– Energooszczędny budynek – wysoki poziom izolacji, potrójne szyby, energooszczędne systemy ogrzewania i chłodzenia
– Idealny na wynajem krótkoterminowy lub długoterminowy – doskonałe obłożenie w sezonie
– Wiarygodny inwestor z wcześniejszymi referencjami i przejrzystym procesem zakupu
Aby uzyskać dodatkowe informacje, obejrzeć, zarezerwować, skontaktuj się z nami już teraz!
Powierzchnia:
Klasa energetyczna:
Warianty nieruchomości:
| Typ | Sypialnie | Łazienki | Powierzchnia | Pow. użytkowa | Działka | Taras | Cena |
|---|---|---|---|---|---|---|---|
| S2 | 2 | 1 | 77m2 | 74.40m2 | 10.60m2 | 259999 EUR | |
| S4 | 2 | 1 | 130m2 | 71.80m2 | 78.60m2 | 249000 EUR | |
| S1 | 2 | 2 | 215m2 | 91.80m2 | 126m2 | 319999 EUR | |
| S3 | 3 | 3 | 171m2 | 126.20m2 | 65.60m2 | 439997 EUR |













